価格1,790万円
(坪単価: 54.2万円)
泉大津市森町2丁目 売り土地 1区画限定建築条件なし!建築業者が決まっていない場合、お客様にマッチしたハウスメーカー 工務店をエスコートさせていただきます!
| 所在地 | 大阪府泉大津市森町2丁目9-31 |
| 土地面積/坪 | 109.21m² (公簿) / 33.03坪 |
| 坪単価 | 54.2万円 |
| 交通 | 南海線 北助松駅 徒歩15分 |
外観
地形図

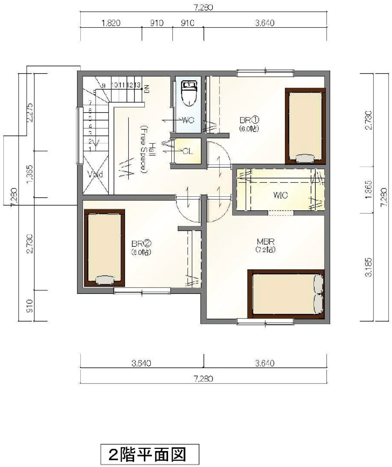
参考プラン
弊社提携ハウスメーカー参考プランです。※注文住宅になりますので、ゼロからスタートできます
設備
設備情報
インフラ
公営水道 、 都市ガス 、 下水
周辺環境
周辺情報
学校
買い物
その他施設
物件概要
| 接道状況 | 一方 ( 南東 4.7m 私道 位置指定 間口11.5m ) |
|---|---|
| セットバック | 無 |
| 都市計画 | 市街化区域 |
| 用途地域 | 第一種住居地域 |
| 土地権利 | 所有権 |
| 総区画数 | 1区画 |
| 現況 | 更地 |
| 引渡し | 即時 |
| 私道負担面積 | – |
|---|---|
| 地目 | 宅地 |
| 地勢 | 平坦 |
| 国土法届出 | – |
| その他費用 | – |
| 取引態様 | 一般媒介 |
お問い合わせはこちら
お電話でお問い合わせ
メールでお問い合わせ






